敷地面積22坪、みんなが集まる2階リビング24坪のコンパクト住宅です。
ご夫婦が家づくりを考えたのは、子どもが生まれたことがきっかけ。 転勤族の家庭に育ったご主人は転校も多く、幼なじみや故郷と呼べる場所がないことを寂しく思っていたそう。 「そこで、我が家を子どもの故郷にしよう、と言い出したんですよ」と奥様。 まずは図書館へ通い、片っ端から住宅関連の本を読むことから始めた。 導き出された答えは「木の家がいい」ということ。様々なメーカーを訪れ、 最終的に自然木の建てる木の家に決めたのは「やさしい感じがした、というのが一番の理由。家はもちろん、 見学に訪れた家の方たちも暮らしを楽しんでいる様子が伺えて、よさを実感しました」。 さらに、同社の家づくりに対する真壁な姿勢や、専門家として良い悪いをきちんと伝えてくれる誠実さにも魅かれたという。 「どこにお金をかけて、どこを節約すればいいのか…そんなところまで快く相談にのってもらいました」。









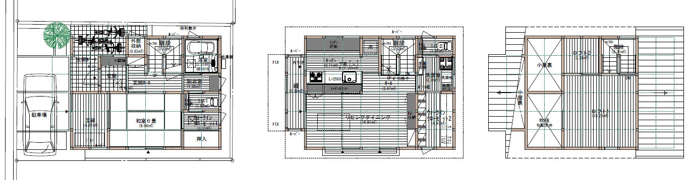
立地・敷地を生かした2階リビングのプラン。
利便性に優れた住宅街でありながら、近くにある公園や神社の豊かな緑に彩られた環境。 2階にリビングを配置するプランには、それらを借景として取り入れながら、採光や通風もアップさせる狙いがある。 ましてや掘切邸のような立地で、限られた敷地に家族が豊かに暮らす家を、と考えた場合、このプランがベストという結論に。
2階はLDKをメインに、洗面室、トイレ、ウォークインクローゼット、物干が設けてある。洗面室には洗濯機が置かれ、 洗濯物は物干に干す仕組み。この物干が優れもので、軒を出して窓で囲んだサンルームのような空間になっている。 陽当たりのよい道路に面し、雨や降灰を気にせず干せるのはうれしいポイント。しかもキッチンとリビングにつながり、 動線もスムーズ。同じフロアで、洗う→干す→収納する、ができるので、家事もぐっと楽に。 熟慮されたプランが共働きのこ夫婦をサポートし、日々の暮らしにゆとりや楽しさをもたらしている。

「子どもたちはいずれ独立するもの。だから夫婦二人でも居心地や使い勝手のいい家を建てたかったんです」。 敷地は22坪、三面は隣家に囲まれている。そこで前述の2階リビング構想が生まれた。子ども部屋はあえて作らず、 成長に応じて必要があればロフトスペースを子ども部屋に、という柔軟な考え。 1階にはウォークインクローゼットを備えた主寝室とバスルーム、トイレを装備。ピアノを置くために強度を高めた広縁は、 キッチンスペースとしても利用できる。
ご夫婦の暮らしはもちろん、親と同居するかもしれない将来のこと、何より夫婦二人が歳をとったときのことを考慮して、 1階だけでも不自由なく過ごせる工夫がされている。階段下を使った書庫やデッドスペースを生かした収納のアイデアの他、 ほとんどの家具を作り付けにすることで、空間をよりスッキリと見せることにも成功。コンパクトでありながら、 ゆとりを感じさせる家に仕上がっている。
こんな家が欲しかった・・・私たちが希望した3つのこと
1.限られた広さに豊かな空間
敷地22坪、延べ床面積24坪(ロフト除く)に、現在と未来の快適さや安心感をギュッと詰め込んでいます。
2.立地を生かす2階リビング
リビングを2階に持ってくることで、明るく風通しのよい空間に。周囲からの視線も気にならず、リラックスできます。
3.スムーズな家事動線
同じフロア内で一通りの家事が行えるプラン。特に洗濯は、洗う→干す→しまうの流れがスムーズなので、ストレスになりません。
Family Voice

夫婦での暮らしをメインに考えながら、親子3人で過ごす時間も大切にできる住まいです。 1年半の時間がかかりましたが、それが理想と現実を考える時間になり、今の思い通りの暮らしにつながっていると思います。
メーカーからのひとこと
鹿児島中央駅近く、街中の22坪の敷地に建つ、24坪コンパクト住宅です。 ロフトヘは、ハシゴではなく階段を設け、多目的に使える部膣にしました。台所と連続するサンルーム(物干)は、雨や降灰を気にせず洗濯物が干せる、共働きのご夫婦に喜ばれているスペースです。